Bought with eXp Realty of Canada, Inc.
For more information regarding the value of a property, please contact us for a free consultation.
13587 Birdtail DR Maple Ridge, BC V4R 2P7
Want to know what your home might be worth? Contact us for a FREE valuation!

Our team is ready to help you sell your home for the highest possible price ASAP
Key Details
Property Type Single Family Home
Sub Type Single Family Residence
Listing Status Sold
Purchase Type For Sale
Square Footage 4,025 sqft
Price per Sqft $473
Subdivision Silver Ridge West
MLS Listing ID R2966420
Bedrooms 6
Full Baths 4
Year Built 2024
Lot Size 5,227 Sqft
Property Sub-Type Single Family Residence
Property Description
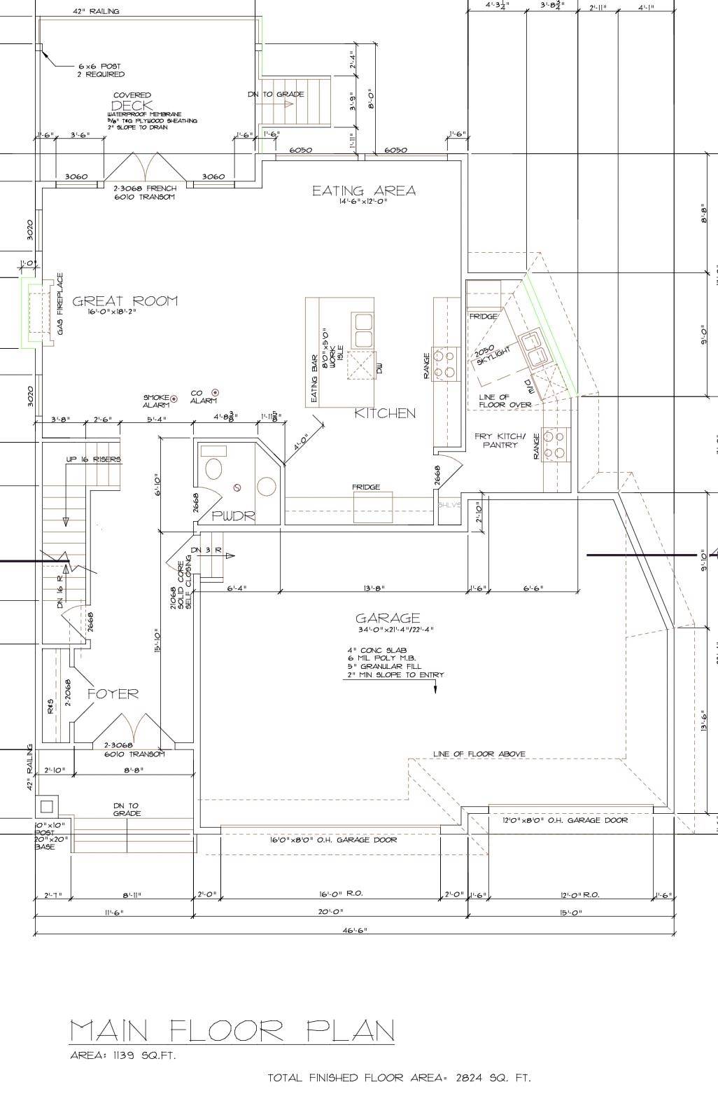
A RARE brand new 3 car garage home in the Silver Ridge West development built by Scott Charlton. The home has 4,025sq.ft of living space featuring 6 bedrooms with 4 full bathrooms and 2 half bathrooms. On the main floor, a large open concept great room, eating area and kitchen opens up to the large 16x10 covered deck with impressive mountain views. There is flexibility for a large walk in pantry or spice kitchen. Upstairs, 5 bedrooms and 3 bathrooms with laundry awaits. Spacious bedrooms for all, especially the primary bedroom with a large walk in closet. In the basement, an office and a powder room for the main home is included, as well as a 797sq.ft 1 bedroom legal suite with separate entry on the side of the home. Estimated completion is March 2025. Pick your colours and finishings!
Location
Province BC
Community Silver Valley
Area Maple Ridge
Zoning R-1
Rooms
Other Rooms Foyer, Great Room, Eating Area, Kitchen, Wok Kitchen, Primary Bedroom, Walk-In Closet, Bedroom, Bedroom, Bedroom, Bedroom, Laundry, Office, Storage, Kitchen, Living Room, Bedroom
Kitchen 3
Interior
Heating Baseboard, Forced Air
Fireplaces Number 1
Fireplaces Type Gas
Exterior
Exterior Feature Balcony
Garage Spaces 3.0
Utilities Available Electricity Connected, Natural Gas Connected, Water Connected
View Y/N Yes
View GOLDEN EARS MOUNTAINS
Roof Type Asphalt
Building
Lot Description Greenbelt, Recreation Nearby, Wooded
Story 2
Foundation Concrete Perimeter
Sewer Public Sewer, Sanitary Sewer, Storm Sewer
Water Public
Read Less

GET MORE INFORMATION




