See all 32 photos
Listed by Pathway Executives Realty Inc.
$699,900
Est. payment /mo
3.99 Acres Lot
Active
43590 Chilliwack Mountain RD Chilliwack, BC V2R 4A1
REQUEST A TOUR If you would like to see this home without being there in person, select the "Virtual Tour" option and your agent will contact you to discuss available opportunities.
In-PersonVirtual Tour

UPDATED:
Key Details
Property Type Vacant Land
Listing Status Active
Purchase Type For Sale
MLS Listing ID R3028555
HOA Y/N No
Lot Size 3.990 Acres
Property Description
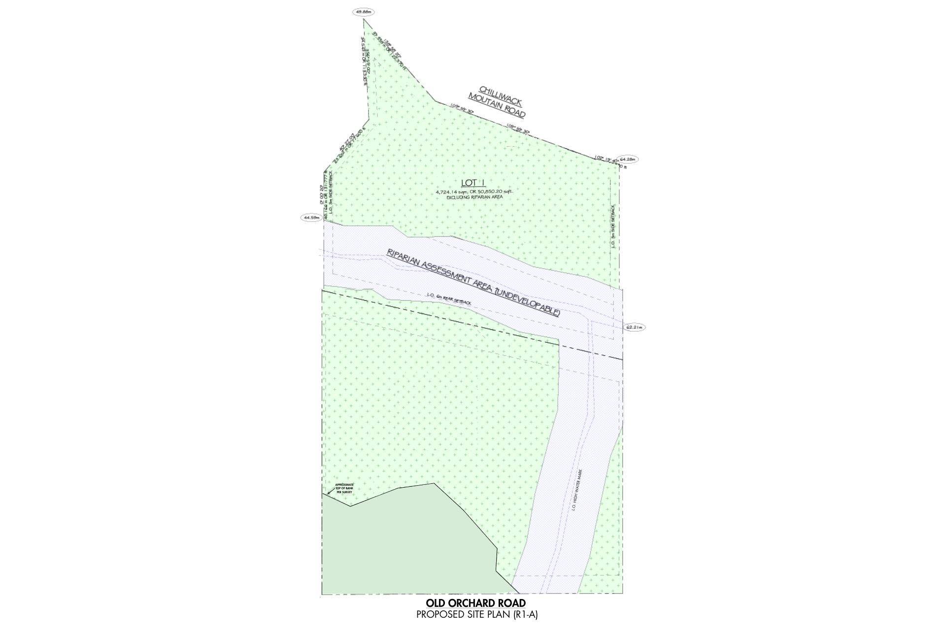
Welcome to beautiful Chilliwack Mountain! Offering 1.85 acres with unobstructed river. This building site could be a perfect family estate, potentially with a detached carriage home! However, we have multiple different use options available with unapproved proposals drafted by JCR design for this property: R4 - 7 townhomes, R1A - 5 Residential Detached lots (3 having garden suites), R3 - 6 lots, & a single family estate. We also have a preliminary civil engineering quote. Just minutes from downtown Chilliwack shopping, schools, recreation, the hospital, 2 highway exits and river access. Build your private Chilliwack Mountain Estate! *Property must be subdivided before completion* The Current advertised property tax is based on the whole property.
Location
Province BC
Community Chilliwack Mountain
Area Chilliwack
Zoning RR
Exterior
Utilities Available Sanitary Sewer Available, Storm Sewer Available, Electricity Available, Natural Gas Available, Phone Nearby, Cable Available
View Y/N No
View Mountains & Fraser River
Exposure South
Building
Water Public
Others
Ownership Freehold NonStrata
Virtual Tour https://spotlightmedia.hd.pics/43590-Chilliwack-Mountain-Rd

GET MORE INFORMATION




